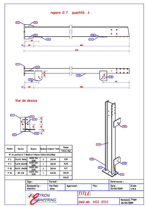
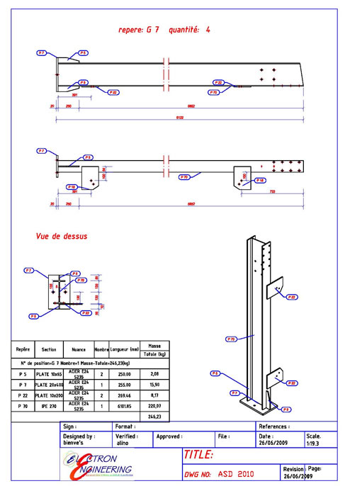
Structure
Etablissement des plans de détails
- Conception et établissement des plans de structure suivant le cahier de charge du MO.
- Etablissement des plans de détails et de de débitage
- établissement du MTO
- Modélisation des structures
- Supervision
- Note de calcul



